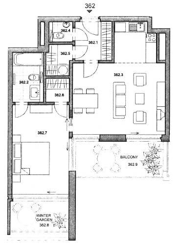
Byt 2+kk/T 72m2 v OV, Praha 7 - Holešovice
| 4 100 000 Kč | |
| BT006-2012 | |
| Prodej | |
| Praha 7 | |
| Holešovice / Varhulíkové | |
| 2+kk | |
| 72 m2 |
Description of realty
Byt 2+kk s terasou v novostavbě River Lofts o výměře 72 m2. Součástí bytu je vlastní terasa, zimní zahrada, šatna a prádelna, 2x toaleta. V ceně parkovací stání v suterénu a sklep. Výhled na řeku a zalesněné stráně. Možnost využívat velkou společnou terasu na střeše domu.







